Enjoy a 10% discount on your first order with us.
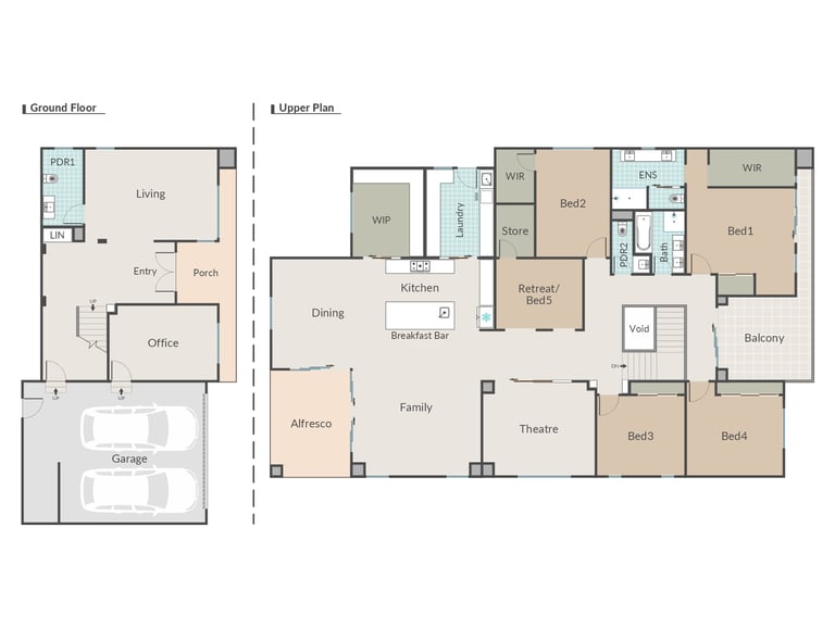
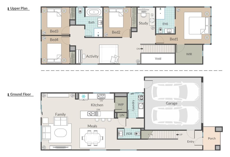
Visualize space: Detailed floor plans
Understand the layout & dimensions of your property


A 2D diagram that shows the layout, dimensions, and arrangement of rooms, walls, and other features within a building.
Definition
Clear Visualization
Space planning
Property comparison
Benefits
What you get from us?
High resolution PDF
Print ready - JPEG (3507 x 2480 px @ 300 dpi)
WEB ready - JPEG (2000 x 1414 px @ 72 dpi)
Turnaround Time: 24 hours
Add-Ons
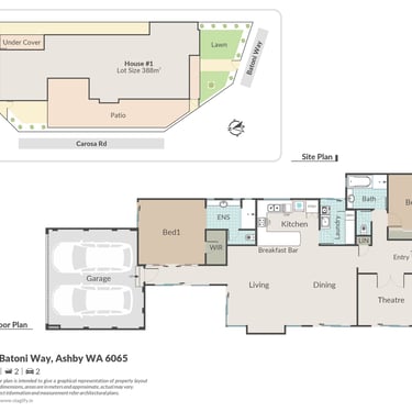
Areal Details
We go beyond basic floorplans by incorporating minimalist aerial details to give you a comprehensive understanding of the property.
These details include: house boundary, lot dimensions, lot size, compass direction, road name, property block, and other key structures such as patio, undercover areas, and pool.
To accurately capture these details, we'll need the property's strata plan, which should include the information listed above.




Our expert team will enhance your property floorplans with standard furniture placements, giving you a crystal-clear picture of how your property will truly feel.
Want to see it with a different style? No problem! We'll gladly customize the furniture to match your vision – all at no extra cost.
Furniture Placement


Floor plans can be hard to visualize. We add clear dimensions to every room, making it easy to picture the size and layout.
We'll extract dimensions directly from your provided floor plan. If precise dimensions are not readily available, we can accurately measure them using specialized software. Please note that they may not be 100% precise.
Add dimensions to floor plan


Essential for successful listings, floor plans with detailed area tables are crucial.
We enhance your plans by extracting existing area data or accurately calculating missing areas using our software.
Please note: Calculated areas are highly accurate but may not be 100% precise.
Add area table to floor plan
Check out our
Impressive Transformations




© 2022-2025 Stagiify Services - All rights reserved.
